Jeramie Posted April 30, 2012 Report Share Posted April 30, 2012 Need some answers if someone can provide them. We are in the process of adding on to the house. We have done 95% of the work including ground work, concrete, plumbing, electric, etc. Now I need to complete the HVAC.I had a spak'n new 4-ton unit put in the house about three weeks ago. The plenum is already hooked up to the old part of the house but there are a few rooms that need hooked up and one old addition that needs re-ducted. I plan on using flex duct for everything.. read on please. Each new bedroom is a 13'-6" x 15' (202.5sqft). From what I’ve read online I need one CFM per SQFT so each room will need roughly 205 CFM. The ducting will be running one of two ways. First, there are little rooms in direct line of the new rooms (roughly 63sqft each). They currently have 8" flex ran to them. They sit about 15' from the plenum. When the AC is on they get cold in a hurry compared to the rest of the house. Can I simply T off of these and run another 12' - 15' to new registers? I’ve read the 8" flex will only deliver 120 CFM? If so I would be grossly undersized. The other option would be to run all new ducting from the plenum. The case is virtually identical for both rooms. The third room on that end is a bathroom I will likely drop a register in too. It is a 8 x 9. Needing roughly 100 CFM so one of the 6” ductings should be sufficient. Lastly, when we added on the first time we added on a 17 x 18 room (Master bed, bath, walk in closet). I had a friend run the ducting. He said with our smaller system at the time we couldn’t lose much so we ran a simply 6" flex to step up velocity and then just put a 110 unit in the to make up the rest. It was fine for a couple of years but now that I have a new system I want it to be right. I have already taken out the window unit, now I need to resize the ducting and run it right. I currently have two small registers in that room. Total run before the T to the two registers is about 18' then another 10' of duct (5' each side) from there. I'll happily re-do this as the current system isn’t doing much for that addition. It does help but come about 106 hot-July in Oklahoma weather it will be a sweat box. We do have two windows and a 58-68 French door leading outside. Sizes? Ideas? HELP! There isn’t much on the net. Apparently most HVAC guys consider it a closely guarded secret!Need some answers if someone can provide them. Quote Link to comment Share on other sites More sharing options...
redkneck Posted April 30, 2012 Report Share Posted April 30, 2012 I'm a lot better hvac mechanic than a duct person (not much of that either)... but.... I would suggest starting by doing a sketch of the house showing room sizes and layout then scan it in and post it. It's not only the size of the rooms that matter, but how far down the trunk line they are branched off at along the way. Got to keep reducing the duct size the farther away you get from the plenum you get to maintain pressure. Too large on the branches, and you'll starve yourself downstream, too small and you'll hear whistling from the high velocity air going across the grills. You can pick up a "ductulator" at most any refrig shop that helps to calculate sizes. Quote Link to comment Share on other sites More sharing options...
mike Posted April 30, 2012 Report Share Posted April 30, 2012 I'm no expert Jeramie but I do know you should try to use rigid pipe as much as possible and stay away from as much flex as possible. Flex pipe will greatly reduce the efficency of your system. Too much friction in that pipe. Quote Link to comment Share on other sites More sharing options...
redkneck Posted April 30, 2012 Report Share Posted April 30, 2012 This is what folks I know use to help them figure it out: I know that's not a lot of help. Quote Link to comment Share on other sites More sharing options...
Jeramie Posted April 30, 2012 Author Report Share Posted April 30, 2012 There is a lot of pressure drop in flex pipe... I know..However, the entire house is ran with flex right now. I dont have a single rigid pipe. I was able to find the charge for CFM in flex. Thats why 8" is rated at something like 255 CFM. Quote Link to comment Share on other sites More sharing options...
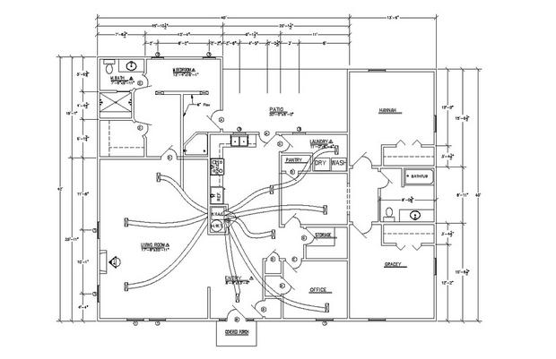
Jeramie Posted April 30, 2012 Author Report Share Posted April 30, 2012 So I already had the floor plan (Plot plan, elevations, etc.) I drew a few years back in AutoCad. I had to rough in the HVAC, ducting, etc but its pretty accurate. Ignore the pretty Mechanical side of things. :DAll flex ducting is 8" except for the 6" and T going into the master. I need to run ducting to the two new bedrooms and bath to the right (west). I also need to re-do the 6" headed into the old master bedroom addition. I will likely branch of that line and add a register in our bathroom as it stays hot or cold in there too.http://farm8.staticflickr.com/7234/6983347756_f4cbfa4a8c_b.jpg Quote Link to comment Share on other sites More sharing options...
Jeramie Posted April 30, 2012 Author Report Share Posted April 30, 2012 For somereason when I edited the post it smashed everything together on the first post... nice. now its hard to read and wont edit.Anywho, if you need a copy of the file let me know, I can email a PDF that is much more clear. Quote Link to comment Share on other sites More sharing options...
dbHunterNY Posted April 30, 2012 Report Share Posted April 30, 2012 i'm electrical so i can't really help you.... if you don't get enough answers though, i can see if i can get a co-worker to look at it. right now we're pretty busy in the office, but i'm sure one of them in the mechanical (HVAC) department can answer any of your questions. let me know. Quote Link to comment Share on other sites More sharing options...
redkneck Posted April 30, 2012 Report Share Posted April 30, 2012 For somereason when I edited the post it smashed everything together on the first post... nice. now its hard to read and wont edit.Anywho, if you need a copy of the file let me know, I can email a PDF that is much more clear. Looks clear enough. I can tell you have a spider system there. Never have been fond of them, though they serve their purpose. I think you'd be better off installing a metal graduated duct with some snap-lock pipe going off to your registers, though I know as well as you do that's going to incur more cost than you likely had figured. I've never been a big fan of flex duct or spider set-ups. If your roof/rafters allow for a straight shot of trunk line, it's worth pricing. Have someone make some up and you can still install it yourself and save some cash. Easy to cut holes in the trunk and come off with snap-loc, then wrap it up and your good. just an opinion, I have beat a lot of duct together, but that was years ago, and I was just a gopher, wasn't a layout guy. Quote Link to comment Share on other sites More sharing options...
Recommended Posts
Join the conversation
You can post now and register later. If you have an account, sign in now to post with your account.